
Paranhos I
Porto, 2019–23
Team
João Paupério
Maria Rebelo
Francisco Craveiro
Bernardo Alves
Marta Sousa
Photography
Francisco Ascensão
Luca Bosco
Paranhos I
Porto, 2019–23

A project that aims to restore the house to an original state that has never existed as such.




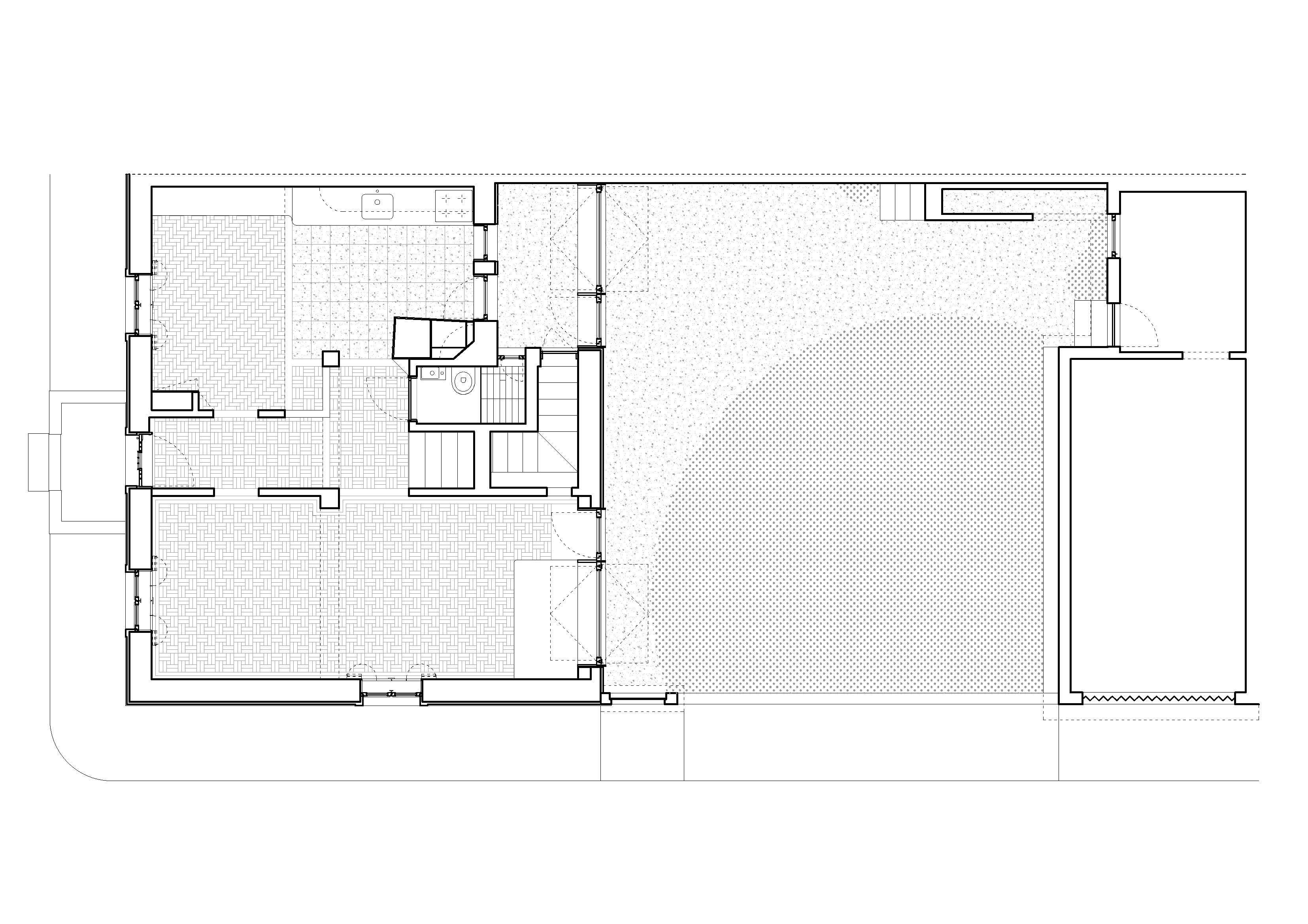
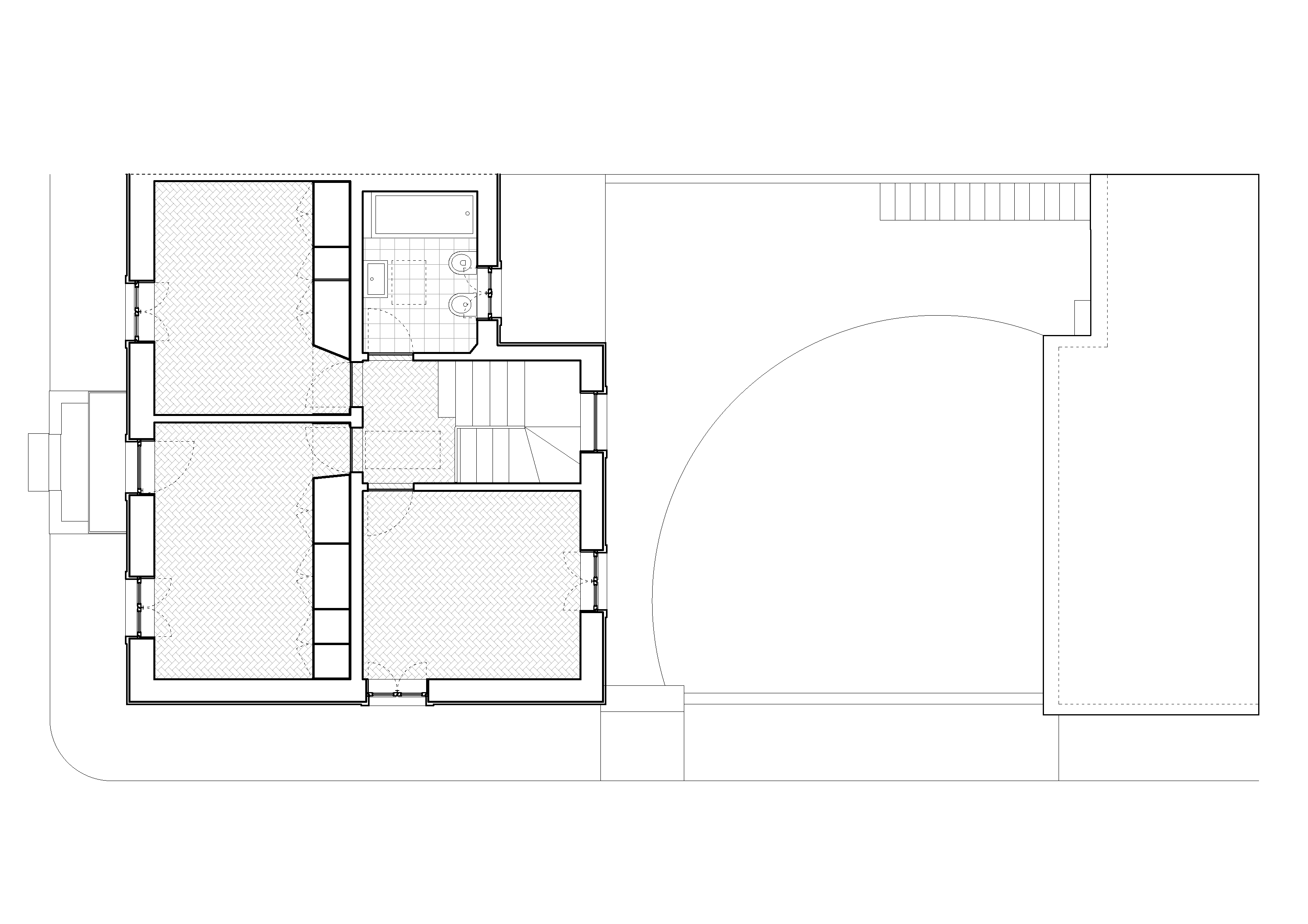
The project in Paranhos concerns the transformation of an ordinary house, that is to say, a house like many others. Whose design is the result of a great economy of gestures. This house is part of the Affordable Housing Neighborhood [Bairro de Casas Económicas] built in Paranhos during the Estado Novo dictatorship, in a (then) peripheral area of the city of Porto. Located on the corner of Rua do Vouga and Rua do Tejo, this house enjoys a privileged position within the neighborhood, as it is exposed to sunlight all day: to the east, south and west. Materializing the ideological perspective that guided the construction of these neighborhoods, the house is also accompanied by a small plot of land, nowadays used as a recreative garden.
With the aim of keeping the house in tune with the forms of contemporary living, the economy of gestures in the existing building was extended into an experiment with new openings and colors. Inside, the demolition of a wall and occasional new openings between existing rooms reorganized the visual relations of the interior, in a kind of modest raumplan. In respect to the rear façade, its composition was complexified with two new (apparently) symmetrical windows. On the right, a porch was transformed into a new winter garden. On the left, the window unfolds into a bench, which in turn acts as a skylight to illuminate and ventilate a basement turned into workspace for a film-maker. In contradiction to the existing openings (both in shape and color), these two new lenses pointed at the garden proved to be important climate control devices, particularly during the winter. As for the colors, like everything else, they were carefully chosen so that changing almost nothing, everything could be different. Ultimately, the project aims to restore the house to an original state that has never existed as such.
In July 2023, Casa em Paranhos was one of the works chosen to be part of the Open House Porto itinerary.






















