Paranhos I

Porto, 2019–23

Equipa

João Paupério

Maria Rebelo

Francisco Craveiro

Bernardo Alves

Marta Sousa

Fotografia

Francisco Ascensão

Luca Bosco

Paranhos I

Porto, 2019–23

Um projecto que propõe restaurar a casa a um estado original que nunca existiu como tal.

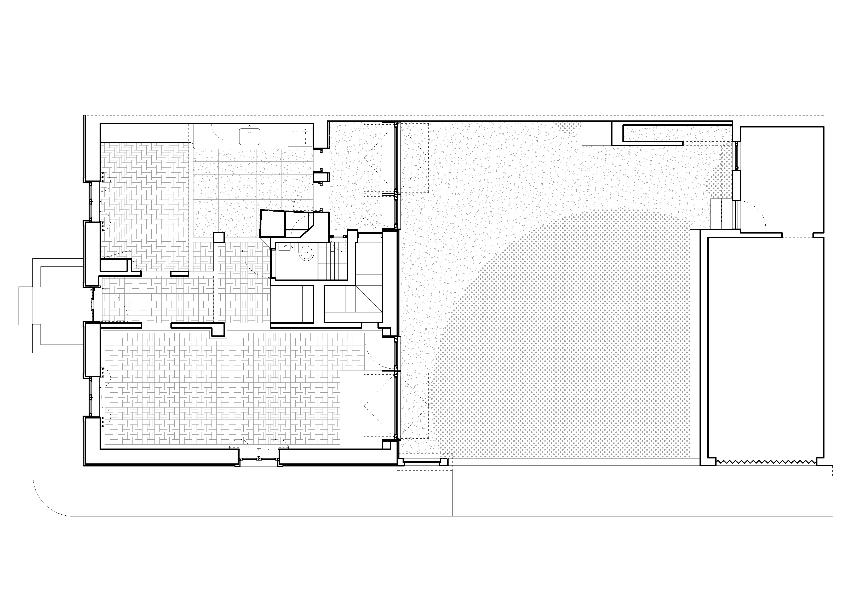
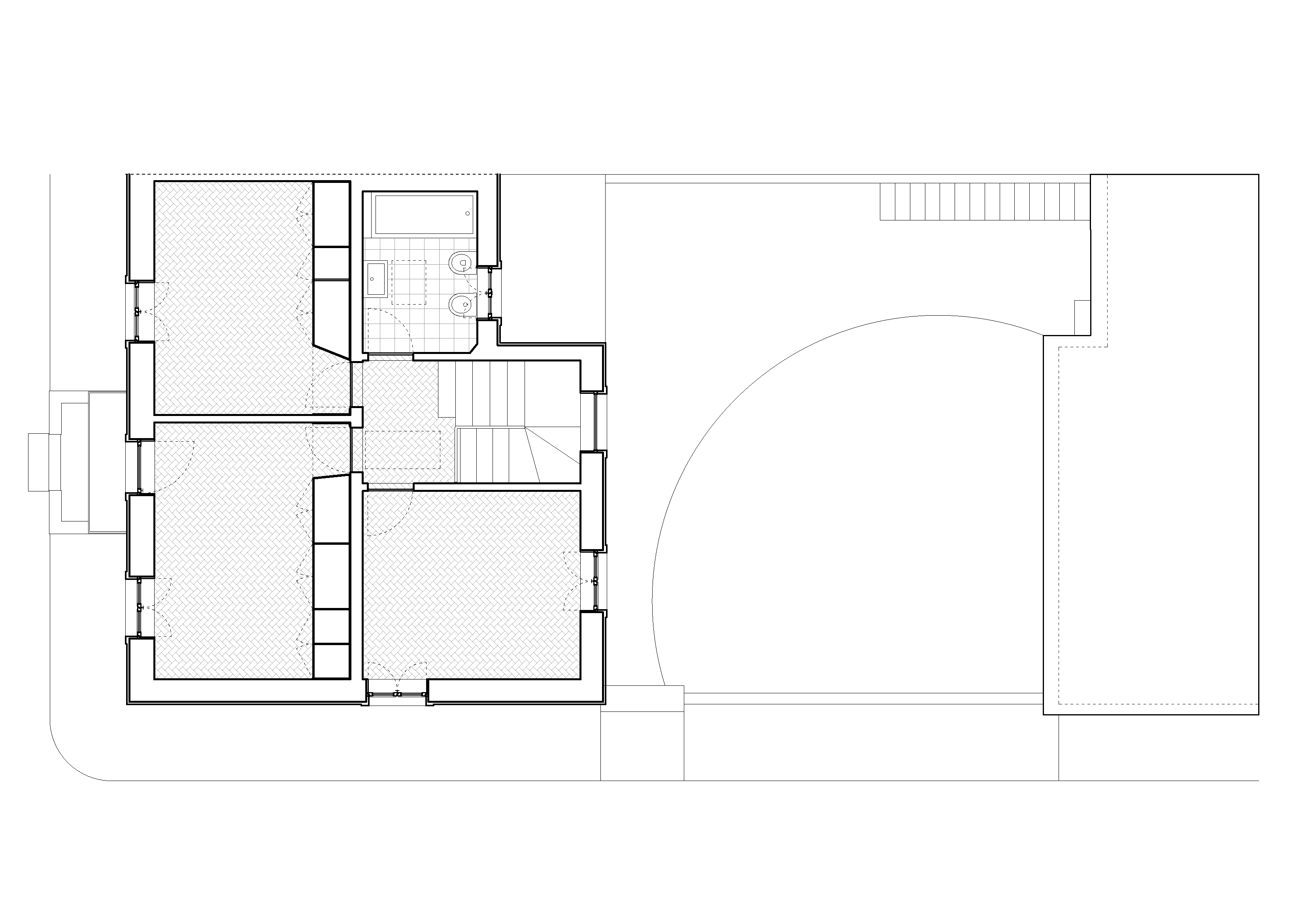
O projeto para Paranhos diz respeito à transformação de uma casa ordinária, ou seja, de uma casa como muitas outras e cujo desenho resulta de uma grande economia de gestos. Sem particular relevo, esta casa integra o Bairro de Casas Económicas de Paranhos, um conjunto de promoção pública construído durante a ditadura do Estado Novo, numa zona (então) periférica da cidade do Porto. Por se encontrar na esquina entre a Rua do Vouga e Rua do Tejo, a casa beneficia de uma posição privilegiada no bairro, com exposição solar a nascente, a sul e a poente. Materializando a perspectiva ideológica que orientou a construção destes bairros, a casa faz-se ainda acompanhar de uma pequena parcela de terra, hoje utilizada como jardim.

Com o objetivo de manter o carácter da casa afinado às formas do habitar contemporâneo, a economia de gestos do edifício existente prolonga-se num ensaio sobre vãos e sobre cores. No interior, o derrube de uma parede e a pontual abertura de novos vãos reorganizou as relações visuais do interior, numa espécie de raumplan em versão modesta. No alçado tardoz, complexificou-se a composição do alçado com duas novas janelas (à primeira vista) simétricas. De um lado, o alpendre transformou-se num novo jardim de inverno. Do outro, a janela desdobra-se num banco, que por sua vez funciona como clarabóia para iluminar uma cave transformada em espaço de trabalho para um cineasta. Em contradição com os vãos existentes (tanto na sua forma como na sua cor), estas duas novas objectivas apontadas sobre o jardim, a sul da casa, revelaram-se importantes dispositivos de controlo climático, particularmente no inverno. Quanto às cores, como tudo o resto, foram cuidadosamente escolhidas para que sem quase nada mudar, tudo pudesse ser diferente. No fim de contas, o projecto propõe restaurar a casa a um estado original que nunca existiu como tal.

Em Julho de 2023, a Casa em Paranhos foi uma das obras escolhidas para integrar o roteiro do Open House Porto.